
You may want to finish your basement for yourself or turn it into a legal rental income suite. You may want to remove a load bearing wall to make the space more open concept.
For any of these changes, you will need to start with a free remote home inspection in Toronto/Ottawa. This will give everyone a better idea of what the scope of the project will be and what type of drawings and services will be required.
Call us today at: 437-808-7039 or through email at sabih@engineeredplans.ca
Once the home assessment is done and we received all the necessary measurements (this may require more than one visit to your home), we will prepare a set of permit drawings. This set includes a site plan, floor plans, elevations, and details as required by the scope of your project in Toronto or elsewhere.
You have the option to take this set of drawings and proceed with the application process, or, you can choose EngineeredPlans apply for the building permit on your behalf.
Q: How long does a the permit process take in Vaughan?
- We usually deliver projects within 1 - 2 weeks, however we understand that each project is unique.
Q: What is the cost to get the permit in Vaughan?
A: We offer competitive rates compared our industry partners. Please reach out to us for a quick quote.
Preparation Include:
City Application Includes:
Post Permit Approval:

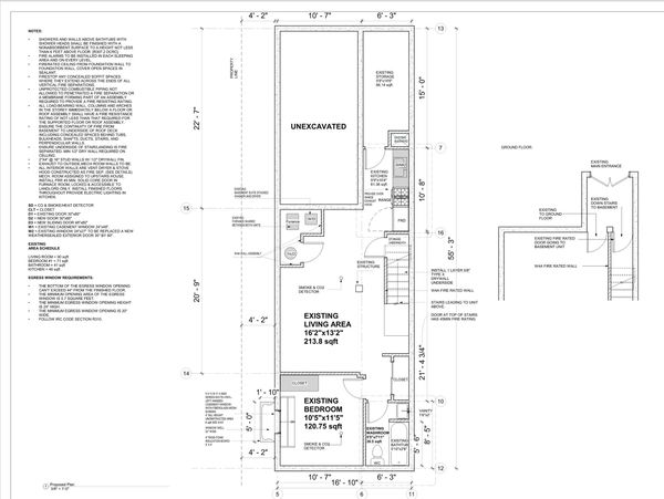
We provided engineering and design services for a basement walkout.

We provided engineering and design services for a basement walkout.

We provided engineering and design services for a basement walkout.

Scope of Work: Permit Drawings for Secondary Dwelling Basement Apartment
Client: Ahmed
Location: Ottawa, ON

Scope of Work: Permit Drawings for Secondary Dwelling Basement Apartment
Client: Harpreet
Location: Willowmere Way, Gloucester

We provided engineering and design services to renovate an existing unfinished basement unit.

We provided engineering and design services to legalize an existing basement.
We have prepared 100's of deck designs around the GTA. We have previously done floating decks, 2nd story decks and Porch designs.
We offer variety of deck designs and permit plans for your DIY projects. Many of the deck plans include features to make your deck unique including canopies, pergolas and planter boxes. Our plans include a framing plan, front & side elevations, footing layout, 3D rendering cover sheet, material list and a typical detail building guide.
We follow all reccomendationsa
There are plenty of advantages to converting an existing finished or unfinished basement into a legal suite. We offer one package to design and get your project approved by the city.
Some of features that we add to our basement designs:
We offer a package to design and get you project approved by the city. The team here at EngineeredPlans is comprised of Architects and Engineers who will provide expert opinion and guidance on your unique project. We offer competitive pricing compared to our competitors due to our years of experience in the renovation industry and a skilled team. We have successfully completed 100’s of projects around the GTA.
We offer the following services in the Residential space:
Architectural and Structural Design (Custom Home, Addition, Renovation and Interior Alteration/ Basement Legalization/ Underpinnings / Side Entrance /Walkout Basement)
1. Contact Us
2. Gather required information
3. Receive Quote
4. Recieve Permit Drawings
Please reach us at if you cannot find an answer to your question.
Building permits are typically needed for construction, demolition, renovation, and additions to residential, commercial, and industrial properties. Projects involving changes to a building’s structure, plumbing, or mechanical systems often require permits
The timeline for obtaining a building permit depends on the complexity of your project and the workload of the city’s building department. Simple projects may be approved in a few weeks, while more complex projects can take several months.
We've encountered numerous clients facing similar issues. They acquire a property only to discover that the second-floor addition, deck, or secondary unit was not constructed in compliance with building codes and was erected unlawfully. The harsh reality is that, if you've purchased such a property, it now falls upon you to rectify the mistakes of the previous owners, despite them being the ones who implemented the changes. This is why conducting a thorough inspection before purchasing the home is crucial, ensuring that everything is in proper order.
There are several stages to obtaining a building permit and completing construction:
According to legal obligations, sellers are required to disclose any additions or unpermitted work they are aware of. However, openly addressing this situation allows for collaboration with buyers, reassuring them that necessary adjustments can be undertaken. Selling a house with minor unpermitted work is indeed a viable possibility.
We recommend reaching out to us for a free consultation to determine if you home has any ongoing permits that need to be closed.
The rules and regulations regarding building without a Building permit vary by municipality in Ontario, and it's important to check with your local municipal building department for specific guidelines.
Constructing a backyard shed, garden shed, or storage shed does not necessitate a building permit if it is smaller than 160 square feet (or 15 square meters). However, any shed exceeding 160 square feet does require a building permit. It's important to note that building permits are obligatory for accessory structures with plumbing, irrespective of their size. For additional details, you can refer to the Toronto website.
In Ontario, it is illegal to build or renovate a building without the required permits. The legislative guidelines for constructing or renovating structures in the province are provided by the Building Code Act of Ontario. Without a valid permission, it is illegal to construct, dismantle, or permit the construction or demolition of a building. If these actions are carried out without the required authorization, there may be severe repercussions, such as fines, penalties, and possible legal action.
If found guilty of a breach of the 1992 Building Code Act, such as building without a permit, the fines might reach $100,000 for many infractions and $50,000 for first offenses.
See our detailed guide here.
Prepare Your Plans:
Complete Application Forms:
Submit Application:
Application Review:
Issuance of Permit:
Commence Construction:
Inspections:
Final Inspection and Occupancy:
1. Constructing a new structure, apartment, etc.
2. Expand a pre-existing structure.
3. Make changes to the structure.
4. Build an auxiliary structure larger than ten meters.
5. Construct a deck.
6. If the retaining wall is on or near to public land, construct a wall that is higher than one meter.
7. Demolish a building entirely or in part.
8. Construct a tent if it spans more than 60 square meters, is affixed to a building, or is located no more than 9 meters from another structure.
9. Install a wood-burning stove or fireplace
10. Set up the chimney.

Cottage on the Kawartha Lakes

Deck - Milton Ontario

Deck - Milton, Ontario

Muskoka Lakes Cottage

Muskoka Lakes Cottage

Muskoka Lakes Cottage

Two Story Deck - Richmond Hill

Deck - Richmond Hill
We use cookies to analyze website traffic and optimize your website experience. By accepting our use of cookies, your data will be aggregated with all other user data.