Eagle Peak Dr – Secondary Dwelling Residence
Scope of Work: Permit Drawings for Secondary Dwelling Basement Apartment
Client: Abdullah
Location: Richmond Hill, ON
Project Statistics
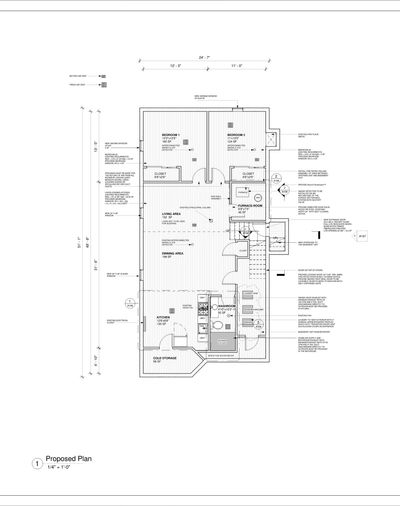
In this Project, we prepared building permit drawings for our Client in Richmond Hill, ON. The scope of the project was to Convert the unfinished basement into a secondary dwelling. EngineeredPlan’s Team did its best to fulfill the client and city requirements and provided the most space efficient design. This basement included two separate, one bath, a huge living area with an open kitchen and open dining area. The storage and a furnace room were separated from the main area to reduce noise and disturbance in the living areas.
The biggest challenges we faced during designing were to fulfill the Lighting City requirements and make the space comfortable and cozy by providing natural light and in the end, we came full filled these requirements by providing an extra window in the living room and a glass opening the side entrance door.
We successfully delivered the Whole Project drawing set which included a site plan for accurate site position and location, an Existing basement plan which we drew using 3D Scan Technology to minimize the risk of error, a Proposed Plan with all the details required, existing ground and second floor, Side Elevation.

We use cookies to analyze website traffic and optimize your website experience. By accepting our use of cookies, your data will be aggregated with all other user data.